第五季中国考古大讲堂第四期丨寻找失落五千年的古城——湖北城河遗址考古新收获
由国家文物局、人民网主办,国家文物局考古研究中心、人民网文娱共同承办的《中国考古大讲堂》第五季“寻根·探源”系列讲座正式推出。本季讲座聚焦中华文明探源工程,选取十个代表性遗址,以翔实的考古发掘材料,丰富的综合研究成果,溯文明之源,探华夏之根。本期邀请到中国社会科学院考古研究所史前考古研究室副主任、副研究员、城河遗址考古项目负责人彭小军主讲《寻找失落五千年的古城——湖北城河遗址考古新收获》。
城河遗址位于湖北省荆门市沙洋县后港镇,地处汉江以西,距石家河遗址约90公里,距屈家岭遗址约60公里,是屈家岭文化时期重要城址之一。
屈家岭文化是分布于两湖地区的重要考古学文化,年代约为距今5100至4500年,主要分布于长江中游地区,与北方的仰韶文化、大汶口文化及东方的良渚文化基本同期。该文化表现出强大的扩张能力,向北进入中原,跨越黄河抵达晋南盆地,向西深入关中直至陕西西部。
屈家岭文化时期,在长江中游腹地修筑了20余座史前城址,规模各异:最大的石家河遗址面积逾百万平方米,城河遗址达70万平方米,较小的城头山遗址为8万平方米,还有仅五六万平方米的城址。这些城址共同构成两湖盆地的重要文化景观,成为五千年前中华大地上的一道亮丽风景。

城河遗址与长江史前城址群
为探究屈家岭文化的社会结构与社会变迁,2011年由中国社会科学院考古研究所、湖北省文物考古研究院、荆门市博物馆和沙洋县文物管理所组成联合考古队,经国家文物局批准,在城河遗址开展以聚落考古和多学科合作为主题的考古研究。
发掘显示,城河遗址城墙上方叠压着屈家岭文化层,表明始建年代不晚于该文化时期。现存城墙高度超过4.8米,其底部发现一层灰烬层,经测年约为距今4900年。灰烬层呈现草本燃烧痕迹,推测在当时的秋冬农闲时节,人们焚烧草地后开启了筑城工程,奠定了城河遗址城墙的基址。
城河遗址外围存在环壕,部分环壕底部设有三角形小沟渠,兼具排水功能,表明壕沟除取土与防御外,亦具备排水能力,避免雨水直接冲刷城墙,有效保护城体完整。

城垣解剖性发掘
近年来对遗址地貌与水系结构的精细勘探显示,城河遗址建于河谷地带,两侧为高地。考古队在邓关台发现一处大型水坝设施,坝体长约200米,宽约二三十米,残高约6米,拦截城河北侧支流以抬升水位,并开凿人工通沟穿越岗地,将水引入城内。模拟分析表明,此人工蓄水区面积达8万余平方米,蓄水量约100万立方米,相当于现代中小型水库规模。当水位升至23米以上时,可自流注入海拔约20.5米的城内,保障生产生活用水。
在治水方面,先民通过开凿南侧岗地引流,并利用城墙作为防洪堤坝,有效抵御河流泛滥。模拟实验证实,若无城墙防护,洪水将淹没城内大部分区域;而城墙的存在可完全阻遏洪水侵袭。此外,在城壕内部发现高约1米的土坝,形似现代滚水坝,可减缓水流冲击,保护城址安全。
长江中游同期城址的防水设施各具特色,呈现“千城千面”的格局,共同构成距今五千年前后区域水利技术的重要实践。
在遗址中部台地发现一座大型凹字形院落建筑,面积约800平方米。建筑基槽结构复杂,工艺与现代农村建房流程相近。墙体拐角以红烧土混合夯土加固,部分位置设有墙墩防垮塌,个别区域还发现可能与祭祀活动相关的木棺遗存。室内存在壁柱及直径约40厘米的大型柱洞,隔断墙划分出多个功能空间。

中部台地大型院落建筑分布
建筑院落内部以大量红烧土铺垫,经人工处理形成坚硬地面。东侧发现大型广场,其表面铺设多层红烧土,呈水平状分布,明显为有意铺垫而非自然倒塌。广场红烧土上层覆盖厚约4—5厘米的灰烬层,推测为临时性篝火活动遗迹。
在大型建筑东南侧的土台上,发现筒形器与四耳器残片,普遍认为与祭祀活动相关,据此推测该区域应为举行仪式活动的场所。遗址还出土了“扣豆”遗存,这一现象为城河遗址首次发现,其镂孔工艺精湛,器表为磨光黑陶,制作精美,应与祭祀仪式密切相关。
![]()
扣豆遗迹
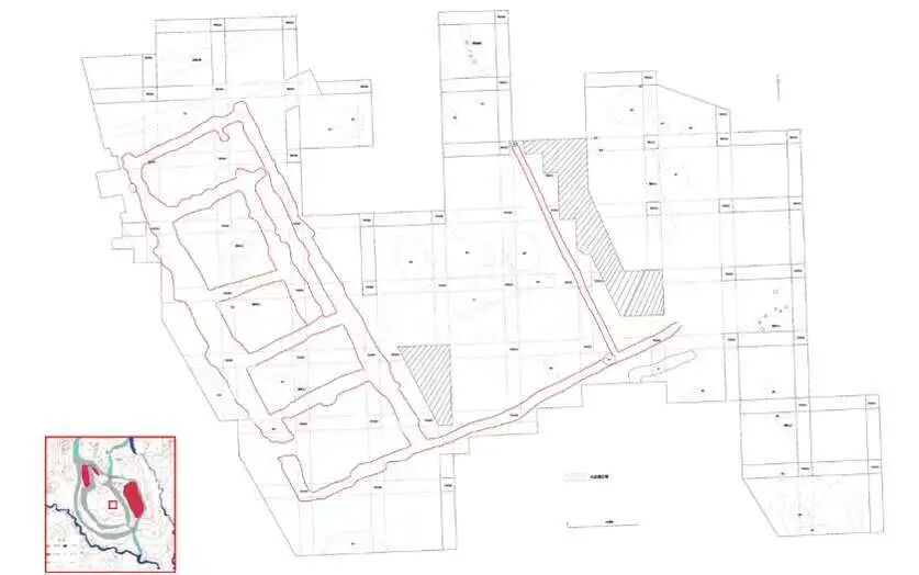
从聚落布局来看,遗址自南向北依次为城河、南城墙、大型建筑群、陶器生产区与祭祀场所,周边散布小型房屋,最北端为王家塝墓地,形成清晰的功能分区。经系统勘探,2017年起对北部区域开展大规模发掘,发现墓葬300余座。
墓葬形制呈现显著等级分化:北区集中分布7座大型墓葬,面积均超过10平方米,最大者达20平方米,在距今五千年的新石器时代堪称规模宏大。这些大型墓葬周围环绕众多中小型墓葬,形成以高等级墓葬为中心的埋葬格局。墓地南侧分布有祭祀区,发现包含叠摞陶器的圆坑、完整猪骨祭祀坑,以及集中废弃的石斧、石锛、纺轮等遗存,表明该区域曾用于祭祀祖先活动。
从墓葬规模来看,遗址包含大、中、小三类墓葬。大型墓葬中可见特殊的对接现象,如M112墓葬由三个独立墓室构成,室间以生土与人工土块构筑的隔梁分隔。各墓室均配备葬具,墓坑揭露后可见多组磨光陶罐,陶罐内发现禽类骨骼,表明其下葬时盛装有食物。

M112同穴三室合葬墓
墓内出土钺与象牙器,根据组合判断,象牙器应为钺柄装饰。人骨下方设有隔板,隔板下层密集放置包括长柄器盖、豆形器等高档磨光黑陶。这表明部分高等级墓葬采用分层结构——上层安置墓主与部分随葬品,下层专设随葬品存放空间。
与中部墓室相比,两侧墓室虽同样随葬玉钺,但未见象牙器。西侧墓室出土猪下颌骨,可能代表整猪头祭祀。从随葬品丰富程度与葬具复杂性来看,中部墓室显然居于核心地位,显示合葬墓内部存在等级差异。
M74棺内外密布黑陶器,人骨鉴定显示墓主为女性,随葬纺轮而非玉钺,暗示当时可能已形成男性持钺、女性持纺轮的社会分工规范。
中型墓葬以M90为例,填土中分层放置若干陶器,排列有序,葬具上方置陶缸,棺外侧摆放陶豆,棺内同样放置陶豆等随葬品。次中型墓葬规模略小,填土中未见随葬品,但棺内放置大量陶器及实用石钺。小型墓葬则呈现多样化特征:部分设有葬具,部分无葬具但均随葬器物,且数量可观。
这些发现系统揭示了屈家岭文化时期复杂的社会结构与丧葬制度。
宏观聚落调查显示,城河遗址周边分布着大小聚落及环壕聚落,与30公里外的马家垸城址共同构成聚落群。两城址间存在空白地带,可能标示各自领地边界,暗示当时已形成以城址为中心的聚落联盟。
最新研究表明,各城址可能自成体系:城河城拥有独立的大型墓葬、祭祀体系、信仰系统及水利设施;石家河城亦具备自身特色的祭祀、防洪体系及墓葬区。这种区域性差异提示长江中游史前城址群或许并非简单的等级从属关系,而是形成了多中心并立的聚落格局。
城河城与石家河城、鸡叫城之间存在密切联系,同时也表现出明显差异。基于此,我们提出“众城之邦”的聚落结构假说,认为这些城址可能处于既竞争又联合的社会形态中。这一认识尚需通过后续考古发掘、多学科研究获取更多证据予以验证。
![]()
“众城之邦”的长江中游文明共同体假设模型
城河遗址的发掘成果有效解答了屈家岭文化强势扩张的动因问题。研究表明,长江中游地区发达的聚落体系、卓越的水利管理能力以及显著的社会分化,共同构成了其北上中原、西入关中的文化基础。先民在治水用水过程中展现出的自然环境利用能力和社会组织能力,正是其文化扩张的内在动力。
距今五千年前后,屈家岭文化北上中原、西入关中、跨越黄河抵达晋南盆地的扩张历程,与良渚文化西进、大汶口文化向中原拓展共同构成了史前中国的文化互动图景。这种在聚落形态、葬仪制度和社会发展程度上的深刻变化,为我们理解中华文明形成过程中的人群移动、文化整合及多元一体格局的形成提供了重要实证。城河遗址的发掘,不仅为认识屈家岭文化的北进提供了坚实的聚落与文化基础,更展现了长江中游地区在中华五千年文明进程中贡献的独特样板。(来源:国家文物局)

